2 d cad drawing of Multifamily living area auto cad software
Description
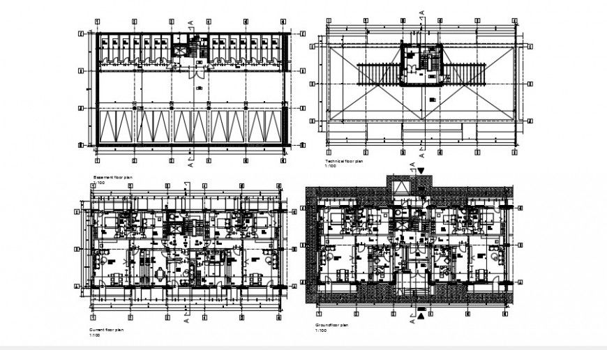
2d cad drawing of Multi family living area autocad software detaiuled with main living room with dining area and kitche area and other related drawing with bedroom plan and common toilet area and balcony area and other kitchen utility area shown in draswing for plan.
Uploaded by:
Eiz
Luna

